Рехау Doors 80
Сечения узлов входных дверей Рехау Doors 80
|
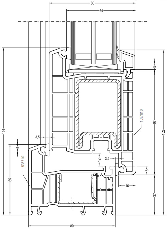
Алюминиевый порог + Z-створка (открывание вовнутрь) |
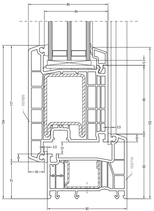
Алюминиевый порог + T-створка (открывание наружу) |
|
|
|
|
Рама + Z-створка (открывание вовнутрь) |
Рама + T-створка (открывание наружу) |
|
|
|
Created with the Personal Edition of HelpNDoc: iPhone web sites made easy



