Подъемно-сдвижной портал Alumark S158

«S158 ALUMARK» — система алюминиевых профилей c термоизолятором, которая предназначена для изготовления
подъемно-сдвижных конструкций с одной или несколькими подвижными створками и глухими частями.
Типы конструкций
Система позволяет изготавливать следующие типы подъемно-сдвижных конструкций:
• однополозные с глухой частью;
• двухполозные;
• двухполозные с глухой часть;
• трехполозные;
• штульповые.

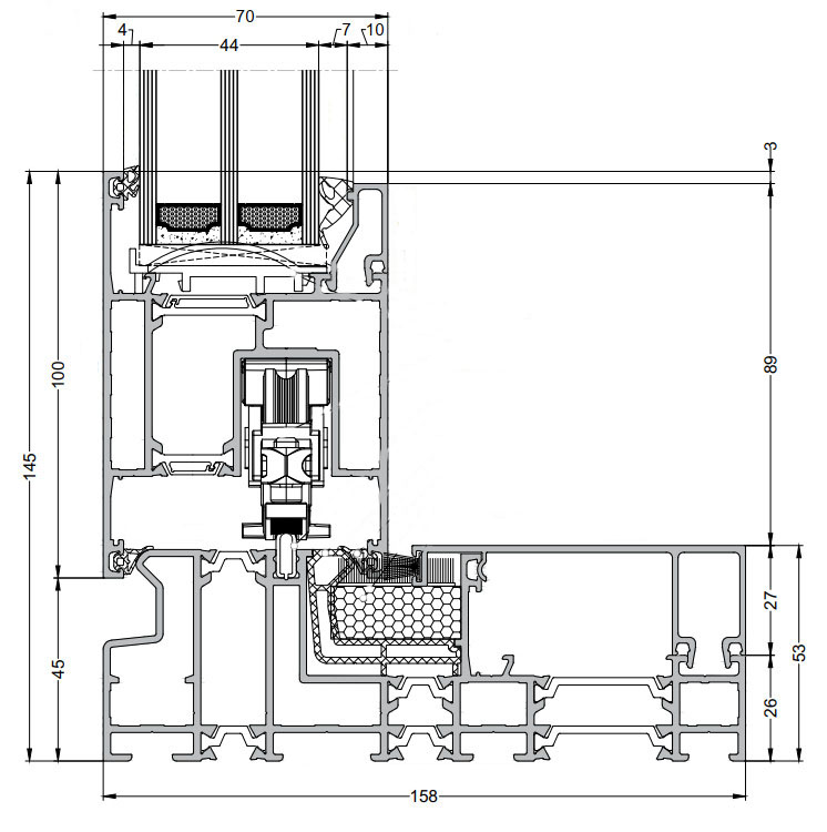
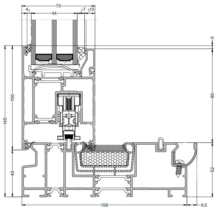
Основные характеристики двухполозной системы:
- монтажная глубина 158 мм.
- заполнение от 10 до 50 мм.
- китайская фурнитура KNG
- максимальный вес створки 400кг
- max высота створки - 2700 мм.
- min высота створки - 1800 мм.
- max ширина створки - 3300 мм.
- min ширина створки - 720 мм
- Максимальная ширина изделия - 12 метров
- Профиль поставляется в неокрашенном виде, возможность покраски в любой цвет RAL. Есть возможность покраски в разные цвета снаружи и внутри
- Система может быть как со всеми активныи створками, так и с глухой частью.
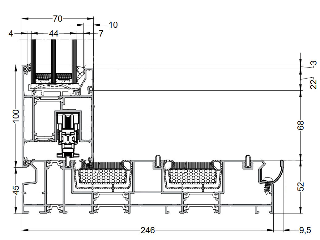
Основные характеристики трехполозной системы:
- монтажная глубина 248 мм.
- заполнение от 10 до 50 мм.
- китайская фурнитура KNG
- максимальный вес створки 400кг
- max высота створки - 2700 мм.
- min высота створки - 1800 мм.
- max ширина створки - 3300 мм.
- min ширина створки - 720 мм
- Максимальная ширина изделия - 18 метров
- Профиль поставляется в не окрашенном виде, возможность покраски в любой цвет RAL. Покраска только в один цвет снаружи и внутри
Схемы открывания:


Сечения узлов
Двухполозный портал с глухарем

Двухполозный портал со всеми активными створками

Трехполозный портал

Построение в WD
Просим пользоваться шаблонами!
Created with the Personal Edition of HelpNDoc: Generate EPub eBooks with ease